IC厌氧罐
免费热线:400-800-9788
首页
公司概况
企业简介
业务领域
发展历程
企业文化
新闻中心
公司动态
行业新闻
招标公告
技术中心
事业领域
污水处理
大气治理
验收及运营
土壤修复
环保设备制造
典型业绩
污水处理业绩
脱硫业绩
脱销业绩
除尘业绩
湿式静电业绩
超低排放业绩
第三方运营业绩
土壤修复业绩
环保设备制造业绩
下属企业
山东立方环境工程有限公司
临沂立方环保设备有限公司
万维营销中心
临沂宏腾商贸有限公司
西安分公司
临沂分公司
商务合作
招商代理
人力资源
用人理念
人才政策
员工活动
招聘信息
联系我们
联系方式
事业领域
污水处理
大气治理
验收及运营
土壤修复
环保设备制造
推荐资讯
潜水搅拌机治理污泥的具
潜水搅拌机的安装步骤和
如何提升铁碳微电解填料
我公司与山东鲁洲集团签
潜水搅拌机所具有的特性
政策之风影响业态走势 环
您的位置:
主页
>
事业领域
>
污水处理
>
污水处理
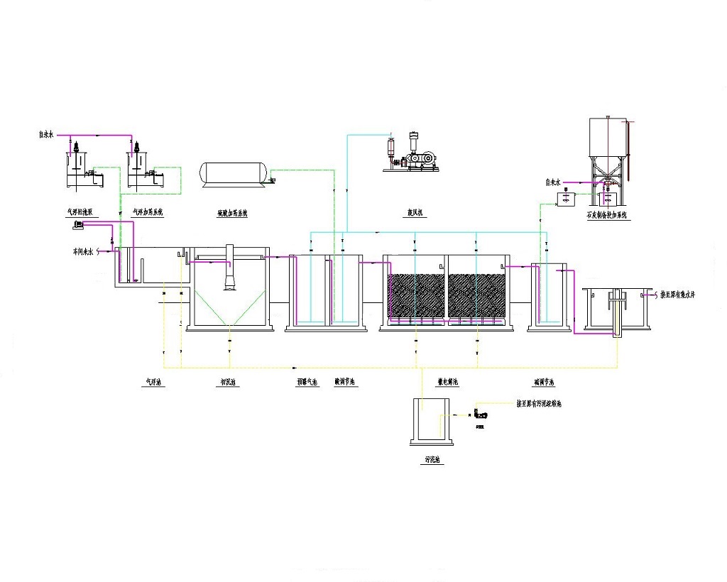
典型污水处理工艺
一、变性淀粉废水处理工艺
二、化工废水处理工艺
三、垃圾渗滤液污水处理工艺
四、屠宰废水处理工艺
五、酒精工业废水处理工艺